
За изнајмување
Се изнајмува деловен простор во Дебар Маало
ID8660O
Тип
Деловен простор Површина
144 m² Локација
Центар Цена
1.600 €

Се изнајмува опремен деловен простор на атрактивна локација во Дебар Маало.
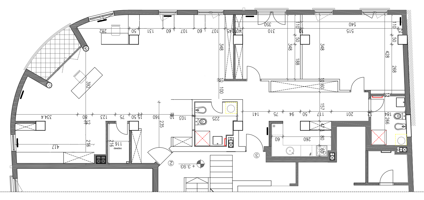
Просторот е лоциран на 1ви кат и располга со внатрешна површина од 144м2, односно со отворен (океански) простор, како и две посебни канцеларии, кујна, два тоалети и тераса.
Греењето и ладењето е регулирано преку фенкојлери и подно греење.
На располагање се две гаражни места и 1 подрумскa просторија на -1 ниво.
Просторот може да се изнајми опремен или празен, односно според потребите на идните закупци.
За повеќе информации контактирајте не: