
За изнајмување
Модерен деловен простор во бизнис зграда
ID11507O
Тип
Деловен простор Површина
680 m² Соби
16 Локација
Центар Цена:
/

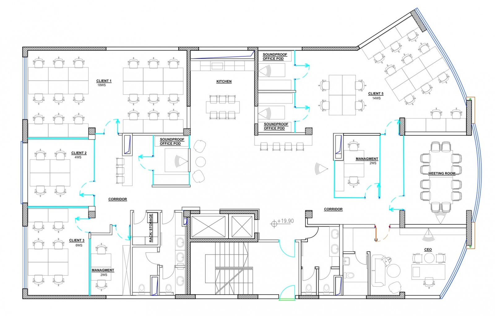
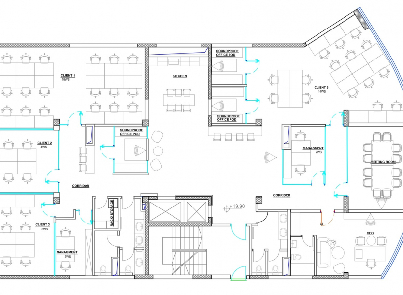
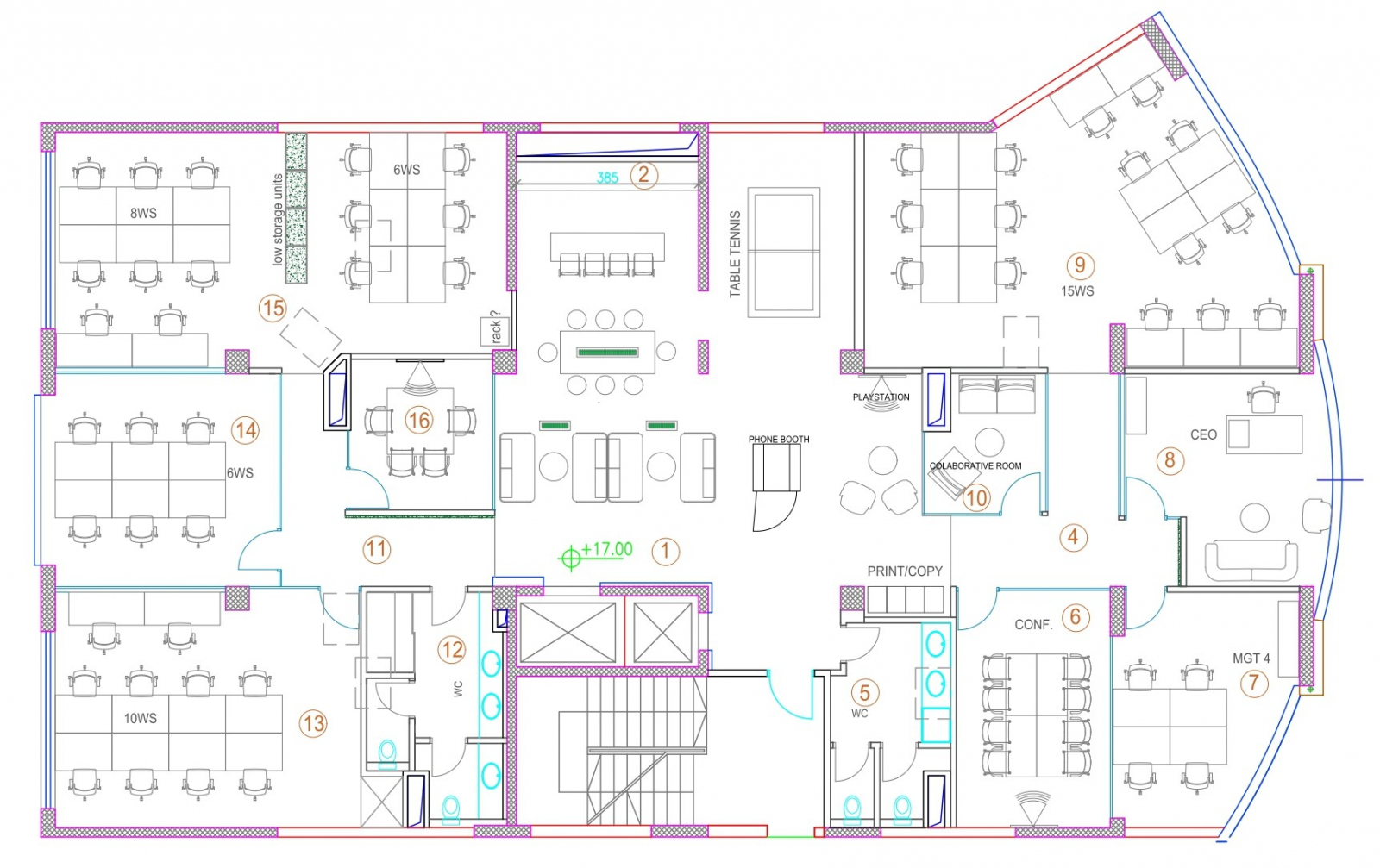
Се изнајмува деловен простор во бизнис зграда во Центар.
Деловниот простор се наоѓа на петти и шести кат.
Петтиот кат располага со квадратура од 340м2 и вклучува еден open space, четири посебни канцеларии со прегради, дополнителни 3 канцеларии, кујна со кантина и место за одмор и два тоалета.
Шестиот кат располага со три посебни канцеларии, една кујна со кантина, три глуви соби за посебни разговори, една канцеларија, една конференциска, океански систем и два тоалета.
Достапно едно паркинг место.
Продажен агент - Мартин Митев