
За изнајмување
Дуплекс деловен простор 84м2 во Центар
ID14364O
Тип
Деловен простор Површина
84 m² Соби
3 Локација
Центар Цена
500 €

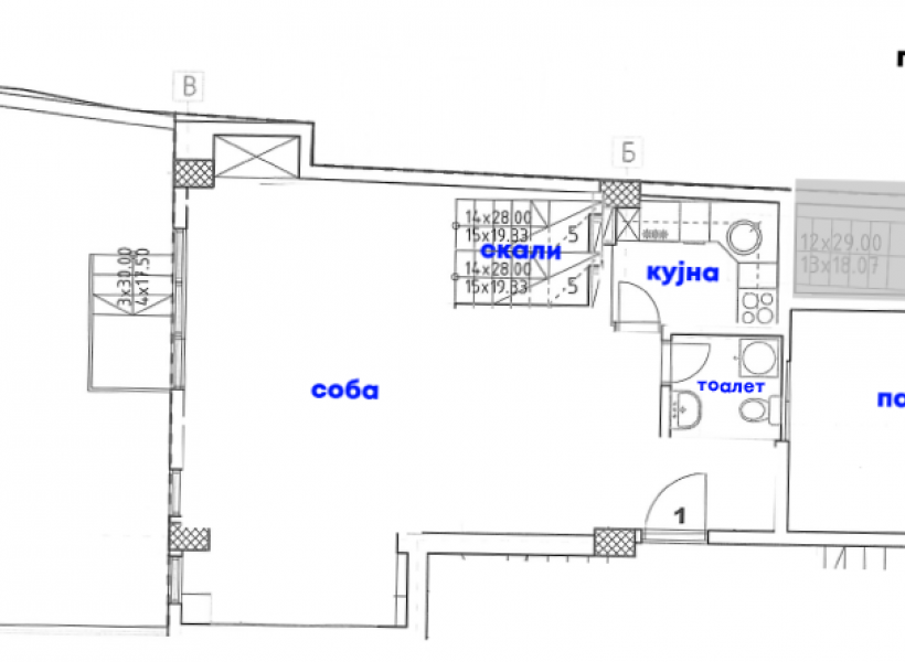
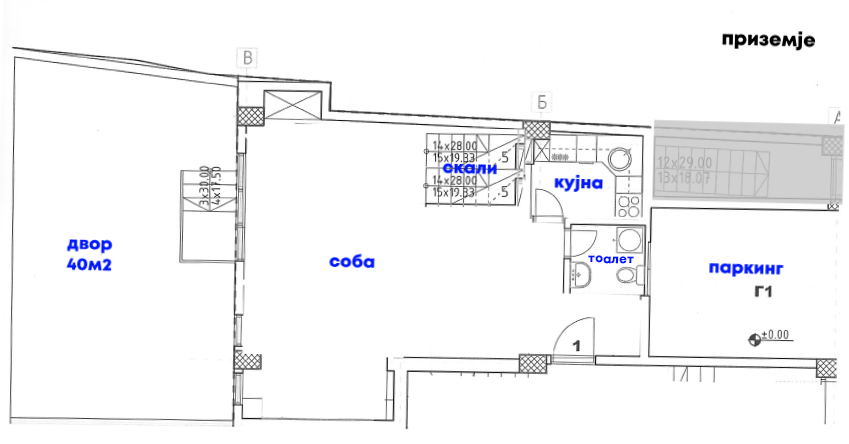
Се изнајмува деловен простор 84м2 со двор на прометна локација во Центар.
Дуплекс деловен простор располага со:
Греењето и ладењето е регулирано со парно на струја и клима уреди.
Достапно е сопствено паркинг место до самиот влез на зградата.
Агент за недвижности - Оливер Стојаноски