
За продавање
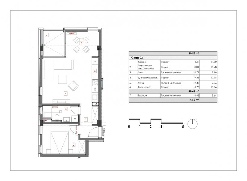
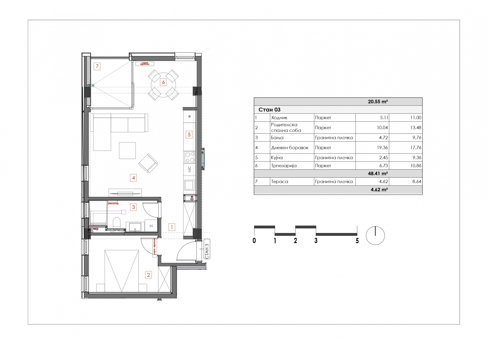
Стан 53м2 во Козле
ID13589A
Тип
Стан Површина
53 m² Соби
2 Локација
Карпош Цена
2.800 €

Се продава нов стан 53м2 (стан бр. 3 и 5) на одлична локација во Козле.
Станот е лоциран на прв кат и располага со:
Просториите се загреваат и ладат со енергетски ефикасни и тивки мулти-сплит системи, за целогодишен комфор.
Достапно е паркинг место во гаража по цена од 20.000 €.
За повеќе информации, контактирајте нe