01 / 03
20 декември 2025
ID15168A
Станови
За Продажба
Стан 120м2 во Центар
Површина
m²
Соби
4
Локација
Центар
за објектот
✓
Централно греење✓
Паркинг / Гаража✓
Лифт✓
Балкон / ТерасаРезиденцијален објект, лоциран во една од најпосакуваните и добро поврзани градски зони, се нудат станови со висок квалитет на градба, функционален дизајн и врвен комфор.
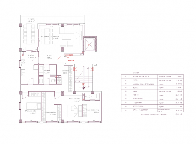
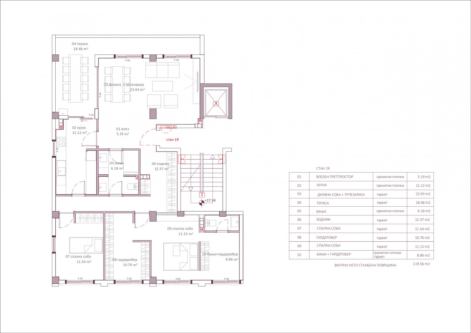
Се продава стан со вкупна површина од 120м2, лициран на поткровје.
Станот располага со три спални соби, од кои едната спална со сопствен тоалет и простор за гардеробер, пространа дневна со трпезарија, одделна кујна, бања и тераса со површина од 18м2.
Квалитет на градба:
- Фасада со 10 см дебелина на стиропор изолација.
- Трослојно термоизолирано термопан стакло со надворешен слој „4 сезони“ (ALUMIL).
- Термоизолирана ПВЦ дограма, со услови за зелен објект.
- Блиндор влезна врата со кодиран клуч.
- Внатрешни врати.
- Керамика од прва класа (ITALEX) и санитарија (ROCA).
- Батерии (GROHE).
- Парно греење (АД ЕСМ Скопје – „Електро Скопје“).
- Лифт
- Трослоен храстов паркeт (TARKET)
Достапни паркинг места на ниво -1 по цена од 15.000 € со вклучен ДДВ и на ниво -2 по цена од 12.000 € со вклучен ДДВ.
За повеќе информации, контактирајте нe
- на е-маил sales@propertyone.mk
- на тел. број +38970277732 ; +38978249488
Контакт со агент
Контактирајте нè за да закажете посета и за повеќе информации за недвижноста.


