Нови станови во станбено-деловен објект
за објектот
Нови станови во станбено-деловен објект.
Станбено-деловен објект, лоциран во една од најпосакуваните и добро поврзани градски зони во Аеродром. Објектот нуди станови со висок квалитет на градба, функционален дизајн и врвен комфор, со лесен пристап до центарот на градот, паркови, ресторани и сите клучни урбани содржини.
Достапни станбени единици:
- Стан тип 1 – 49м², прв кат: дневна со кујна и трпезарија, спална, бања, тераса
- Стан тип 2 – 66м², прв, втор, трет, четврт, петти и седми кат: дневна, кујна со трпезарија, две спални, бања, тераса
- Стан тип 3 – 44м², прв, втор, трет, четврти и седми кат: дневна, кујна со трпезарија, спална, бања, тераса
- Стан тип 4 – 68м², прв, трети, четврти, петти, шести и седми кат: дневна, кујна со трпезарија, три спални, бања, тоалет, тераса
- Стан тип 5 – 76м², шести кат: дневна, кујна со трпезарија, три спални, бања, тоалет, тераса
- Стан тип 6 – 78м², шести кат: дневна, кујна со трпезарија, две спални, бања, две тераси
- Стан тип 7 – 89м², седми кат: дневна, кујна со трпезарија, три спални, бања, тоалет, остава/гардеробер, две тераси
Квалитет на градба:
- Фасада и ѕидови: Demit Knauf систем со стиропор изолација 10 см, керамички термо блок 16см Младост, внатрешен гипсан малтер; дополнителна термоизолација помеѓу становите и во ходниците.
- ПВЦ столарија: VEKA или REHAU со двојно стакло, антрацит надвор, бел профил внатре
- Врати: внатрешни медијапански врати Prospera, надворешна сигурносна врата од метална конструкција
- Паркет: трослоен храстов паркет Rezult/Tarket
- Лифт: PRIMA LIFT со мотор од Италија
- Водовод и хидроизолација: PPR Pestan, Becament/Ceresit Германија
- Бања: висококвалитетни материјали, хидроизолација и спуштен плафон Hunter Douglas/Amstrong
Греењето во објектот е предвидено на градско централно парно, додека за ладење е предвидена инсталација за клима уреди.
Планираниот рок за завршување на изградбата е крајот на 2027 година.
Цената на становите изнесува 2.200 €/м² + 5% ДДВ.
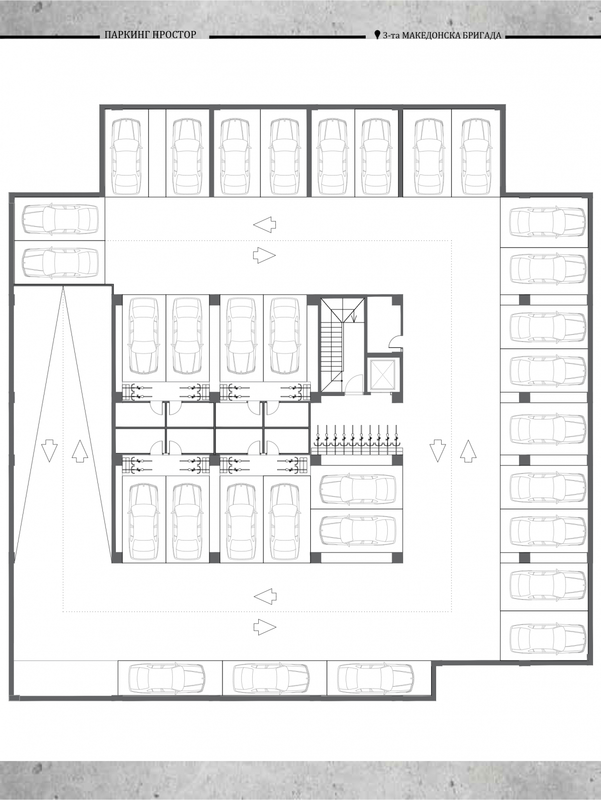
Достапни се и паркинг места на ниво -1 по цена од 12.000 € со вклучен ДДВ.
За повеќе информации, контактирајте нe
- на е-маил sales@propertyone.mk
- на тел. број +38970277732 ; +38978249488
Контакт со агент
Контактирајте нѐ за да закажете посета и за повеќе информации за недвижноста.









