01 / 29
ID11507O
Деловен простор
За Изнајмување
Модерен деловен простор во бизнис зграда
EUR
Површина
m²
Соби
16
Локација
Центар
за објектот
✓
Паркинг / Гаража✓
Интернет / Wi-Fi✓
Домофон✓
Целосно опремен✓
Опремена кујна✓
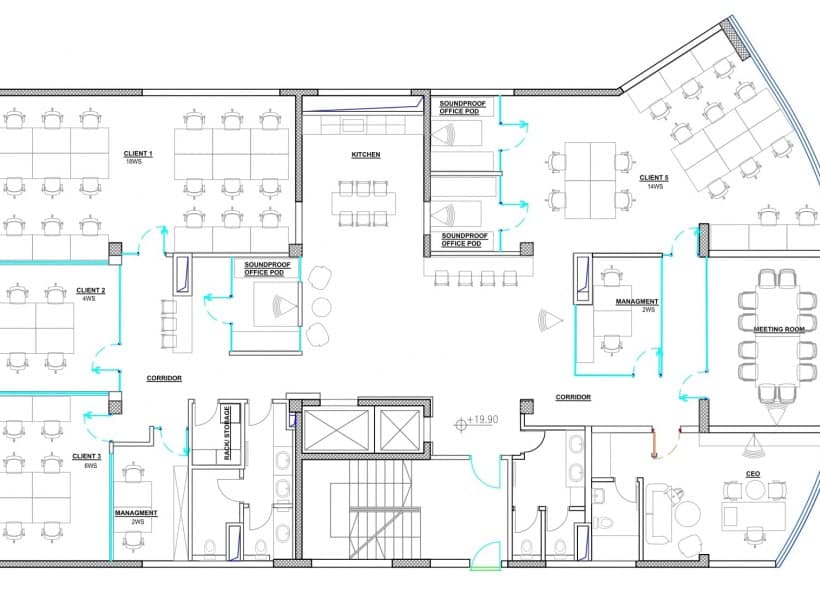
ОпременСе изнајмува деловен простор во бизнис зграда во Центар.
Деловниот простор се наоѓа на петти и шести кат.
Петтиот кат располага со квадратура од 340м2 и вклучува еден open space, четири посебни канцеларии со прегради, дополнителни 3 канцеларии, кујна со кантина и место за одмор и два тоалета.
Шестиот кат располага со три посебни канцеларии, една кујна со кантина, три глуви соби за посебни разговори, една канцеларија, една конференциска, океански систем и два тоалета.
Достапно едно паркинг место.
Продажен агент – Маринела Јаневска
- Контакт тел: 0038978306083
- E-меил: sales@propertyone.mk
Контакт со агент
Контактирајте нѐ за да закажете посета и за повеќе информации за недвижноста.




























