Нов деловен објект во Кисела Вода
за објектот
Се изнајмува индивидуален деловен објект со намена за мало стопанство во општина Кисела Вода.
Нова градба, енергетски ефикасна, некористена, завршена со изведба во 2023 година. На само 4,4 km оддалеченост од строгиот центар на градот.
Вкупна нето подна површина на објектот (без тераси): 1.255 m2; површина на парцела: 1.189 m2.
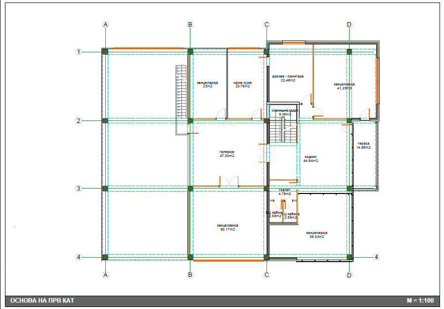
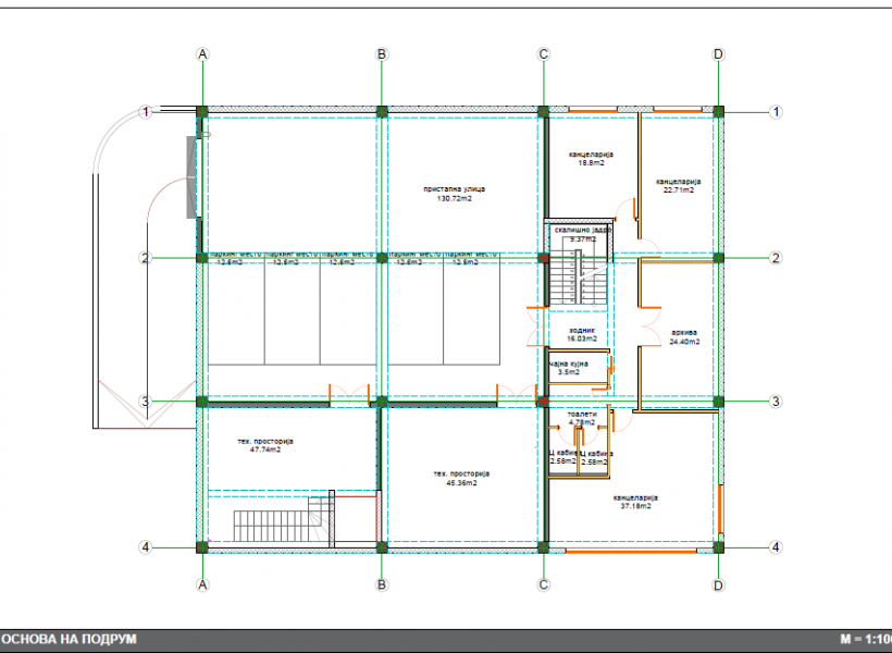
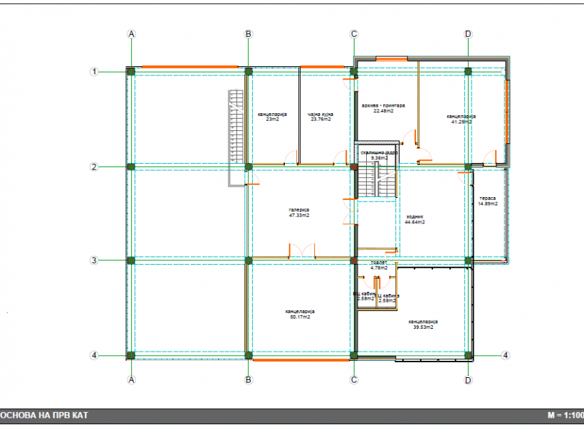
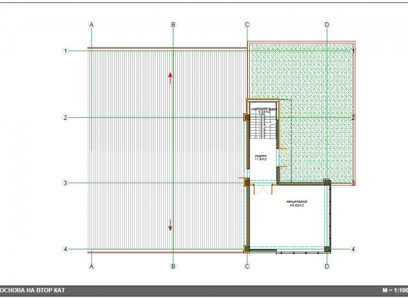
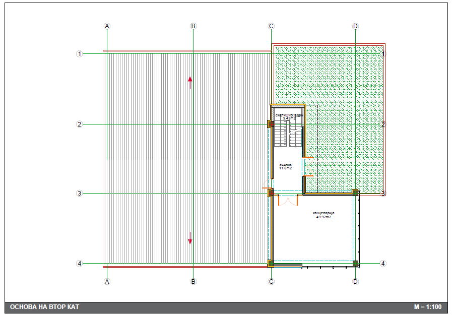
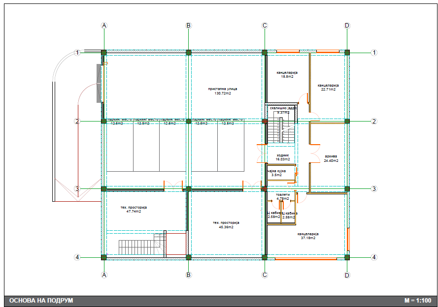
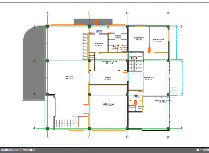
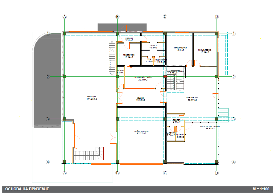
Објектот се протега во четири нивоа сметајќи го и подрумското ниво:
- Подрумското ниво содржи паркинг простор, магацини и санитарни простории (428 m2)
- Приземјето содржи двовисински простор – хала, работилница, канцеларии, санитарни простории и кујна за вработени (431 m2)
- Првиот кат содржи канцеларии, санитарни простории, кујна (325 m2) и тераса (14 m2)
- Вториот кат содржи канцеларија (71 m2) и голема тераса (114 m2)
Обезбедени паркинг места: минимум 14. На плацот има два влеза со пристап од улица.
Централен систем за греење и ладење: Топлинска пумпа на електрична енергија (Воздушно ладен компресорски агрегат), моќност за греење: 72 kW; моќност за ладење: 74 kW; систем на парапетни и касетни вентилаторски конвектори.
Во целиот објект има инсталација за интернет и телефон и систем со централа за дојава на пожар, хидранти и протипожарни апарати.
Месечна закупнина: 6 еур/m2 + ДДВ 18%, интегрално за целиот објект.
Продажен Агент – Стефан Ѓоргиевски
- Контакт телефон: 0038978256471
- Е-маил: sales@propertyone.mk
Контакт со агент
Контактирајте нè за да закажете посета и за повеќе информации за недвижноста.













